購入・売却・リノベ・無料相談はこちら 公式LINEで気軽に相談

ガーデンホームズ白金

ガーデンホームズ白金

URLとタイトルをコピーしました!

【仲介手数料相談・掲載写真79枚】港区白金2-5-12/駐車場有/ペット飼育可/新耐震基準適合/定休日なしで内見予約・無料相談受付中です!
この物件の売却相談はこちら
正規
14,780万円

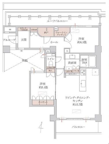
間取り図

URLとタイトルをコピーしました!
14,780万円
73.29㎡
2LDK
なら

仲介手数料 50% OFF

通常
494万円
247万円お得
当社
247万円

マンションは、“どこから買うか”で
支払う費用が変わります

仕組みを詳しく見る

月々の支払い目安を見る

ローンの目安
389,000円/月
管理費
17,200円/月
修繕積立金
16,930円/月
合計
423,130円/月

※ローンの⽬安は、頭⾦ゼロ、借⼊年数35年、都市銀⾏・変動⾦利0.595%(優遇利⽤を想定。) 審査内容により、融資の⼀部または全部をご利⽤いただけない場合がございます。予めご了承ください。

間取り図

73.29㎡ 2LDK

編集部の
部屋レポ

編集部が実際に現地を訪れ、見たもの・感じたことをレポート。
図面だけでは伝わらない"リアルな空気感"をお届けします。

更新日:2022/10/21

更新日:2022/10/21

▲ このお部屋の雰囲気がお好みの方へ

東京グラウンド編集部の住まいレビュー

高級住宅街で名高い港区白金のマンションをご紹介しました♪白金高輪駅から徒歩5分の好立地で都内各所へのアクセスも電車で30分圏内と好条件です◎お部屋は20年連続グッドデザイン賞を受賞したコスモスイニシアが手掛けるフルリノベーション。デザイン性から機能性まで兼ね備えた洗練された空間に生まれ変わっています♡南向き2LDKで、ガラス扉や折り上げ天井を採用し、照明にもこだわり、開放感溢れるワンランク上の内装に仕上がっていますよ♪収納力も申し分ないです◎水回りの設備も整っていますので、快適な暮らしが叶います✧是非一度足をお運びください✧ ライター:坂口【22J18】

この物件の毎月の支払いイメージを
試算してみませんか?

頭金や返済年数などを入力するだけで毎月の合計支払額をシミュレーションできます。

14,780

万円

最初にまとめて支払うお金です。
頭金なしでもローンは組めますので
ご安心ください。

万円

ローンを何年かけて返済するかを
入力します。よくある期間は
35年、30年、20年など。

変動金利で0.3〜0.6%(低金利だが将来的に変動)、固定金利で1.0〜1.5%(返済額がずっと一定で安心)が一般的な目安です。

毎月の支払い予想シミュレーション

ローン支払い目安
389,000円/月
管理費
17,200円/月
修繕積立金
16,930円/月
合計
423,130円/月

※試算結果はあくまで目安であり、実際の借り入れを保証するものではありません。
※物件によっては上記以外の別途費用が発生する場合もございます。詳しくはお問い合わせくださいませ。

住戸概要

価格
14,780万円
所在階
5階
間取り
2LDK
専有面積
73.29㎡
バルコニー
7.05㎡
管理費
17,200円/月
修繕積立金
16,930円/月
ルーフバルコニー
10.43㎡
ルーフバルコニー使用料
300円/月
リノベーションアフターサービス保証付住宅ローン控除対象

建物と街のようす

[白金高輪 この地にふさわしく] ガーデンホームズ白金

港区白金2-5-12MAP

徒歩5分

外観・共用部

その他の共用部・設備写真

物件概要

物件名
ガーデンホームズ白金
所在地
港区白金2-5-12
築年月
平成13年/2001年4月
構造
鉄筋コンクリート造
階数
地下2階付 7階建
土地
所有権
総戸数
81戸
分譲会社
鹿島建設株式会社
管理会社
三菱地所コミュニティ株式会社
駐車場
有 (37,000円/月)
駐輪場
有 (500円/月)
バイク置き場
ペット飼育
可 (細則有)

設備・特徴

エレベーター オートロック 宅配BOX 防犯カメラ 新耐震基準適合

アクセス・周辺環境

アクセス

東京メトロ南北線/都営三田線 『白金高輪』駅 徒歩5分

こんなお部屋に住みたい方へ リフォーム:リノベーション

不動産にまつわるご相談・ご質問・資料請求など
まずはお気軽にお問い合わせくださいませ。