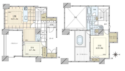
間取り図
価格改定
なら
仲介手数料 無料!
追加費用も一切なし
マンションは、“どこから買うか”で
支払う費用が変わります
仕組みを詳しく見る
月々の支払い目安を見る
※ローンの⽬安は、頭⾦ゼロ、借⼊年数35年、都市銀⾏・変動⾦利0.595%(優遇利⽤を想定。) 審査内容により、融資の⼀部または全部をご利⽤いただけない場合がございます。予めご了承ください。
間取り図
222
編集部が実際に現地を訪れ、見たもの・感じたことをレポート。
図面だけでは伝わらない"リアルな空気感"をお届けします。
更新日:2026/01/07
東京グラウンド編集部の住まいレビュー
品川駅は複数の路線が利用できる大変便利な駅。マンションから品川駅まで、有料で居住者専用のシャトルバスも出ているのでスムーズにお出かけいただけますよ♥再開発で人気が高まる天王洲アイル駅周辺は、運河はもちろん緑が多く自然を身近に感じられます。『ワールドシティタワーズキャピタルタワー』は、スーパーがマンション内に入っているほか共用施設やサービスも充実していますよ。お部屋のオススメポイントは、なんといっても開放的なリビングダイニングキッチン✦床暖房やエアコンが備わった快適空間は、ホームパーティーにも最適です。魅力満載のこちらのお部屋、ぜひ一度ご覧ください♫ ライター:田中【22J29】
この物件の毎月の支払いイメージを
試算してみませんか?
頭金や返済年数などを入力するだけで毎月の合計支払額をシミュレーションできます。
13,280
毎月の支払い予想シミュレーション
※試算結果はあくまで目安であり、実際の借り入れを保証するものではありません。
※物件によっては上記以外の別途費用が発生する場合もございます。詳しくはお問い合わせくださいませ。
住戸概要
間取り図
こちらの物件の仲介手数料は
個別にご案内いたします。
詳細をご希望の方は
お気軽にご相談ください。
お問い合わせはこちら
月々の支払い目安を見る
※ローンの⽬安は、頭⾦ゼロ、借⼊年数35年、都市銀⾏・変動⾦利0.595%(優遇利⽤を想定。) 審査内容により、融資の⼀部または全部をご利⽤いただけない場合がございます。予めご了承ください。
間取り図
111
編集部が実際に現地を訪れ、見たもの・感じたことをレポート。
図面だけでは伝わらない"リアルな空気感"をお届けします。
更新日:2026/01/07
東京グラウンド編集部の住まいレビュー
今回ご紹介したのは、専有面積110㎡超・最上階ペントハウス・屋外ジャグジー付きと、非日常が詰め込まれた唯一無二のプレミアム住戸。メインのリビングダイニングは吹き抜けになっており、大きな窓からは圧倒的な開放感と圧巻の景色をお楽しみいただけます。キッチンや洋室、サニタリールームも広くとられ、もちろん収納も豊富なので暮らしやすさも満点です。疲れた1日の終わりには、屋外ジャグジーがしっかり癒します♡天王洲アイルのシンボル的存在のタワーマンションで過ごす、非日常的な日常はいかがですか? ライター:井出【22J15】
この物件の毎月の支払いイメージを
試算してみませんか?
頭金や返済年数などを入力するだけで毎月の合計支払額をシミュレーションできます。
27,000
毎月の支払い予想シミュレーション
※試算結果はあくまで目安であり、実際の借り入れを保証するものではありません。
※物件によっては上記以外の別途費用が発生する場合もございます。詳しくはお問い合わせくださいませ。
住戸概要
間取り図
こちらの物件の仲介手数料は
個別にご案内いたします。
詳細をご希望の方は
お気軽にお問い合わせください。
お問い合わせはこちら
月々の支払い目安を見る
※ローンの⽬安は、頭⾦ゼロ、借⼊年数35年、都市銀⾏・変動⾦利0.595%(優遇利⽤を想定。) 審査内容により、融資の⼀部または全部をご利⽤いただけない場合がございます。予めご了承ください。
間取り図
この物件の毎月の支払いイメージを
試算してみませんか?
頭金や返済年数などを入力するだけで毎月の合計支払額をシミュレーションできます。
12,780
毎月の支払い予想シミュレーション
※試算結果はあくまで目安であり、実際の借り入れを保証するものではありません。
※物件によっては上記以外の別途費用が発生する場合もございます。詳しくはお問い合わせくださいませ。
住戸概要
間取り図
なら
仲介手数料 50% OFF
マンションは、“どこから買うか”で
支払う費用が変わります
仕組みを詳しく見る
月々の支払い目安を見る
※ローンの⽬安は、頭⾦ゼロ、借⼊年数35年、都市銀⾏・変動⾦利0.595%(優遇利⽤を想定。) 審査内容により、融資の⼀部または全部をご利⽤いただけない場合がございます。予めご了承ください。
間取り図
この物件の毎月の支払いイメージを
試算してみませんか?
頭金や返済年数などを入力するだけで毎月の合計支払額をシミュレーションできます。
11,900
毎月の支払い予想シミュレーション
※試算結果はあくまで目安であり、実際の借り入れを保証するものではありません。
※物件によっては上記以外の別途費用が発生する場合もございます。詳しくはお問い合わせくださいませ。
住戸概要
こちらのお部屋は販売終了いたしました
過去に販売したお部屋の一部をご紹介。
住まい探しやリノベーションのヒントにご覧ください。
こちらのお部屋は販売終了いたしました
過去に販売したお部屋の一部をご紹介。
住まい探しやリノベーションのヒントにご覧ください。
[天王洲アイル 非日常がここに] ワールドシティタワーズキャピタルタワー
駅
徒歩4分
その他の共用部・設備写真
物件概要
設備・特徴
エレベーター オートロック 宅配BOX トランクルーム 防犯カメラ コンシェルジュサービス24時間有人管理各階ゴミステーション来客用駐車場アクアサイトプールキッズプールトレーニングジムフィットネススタジオリラクゼーションルームウェルネスバスキッズランドスカイラウンジスカイライブラリーシアターカラオケビュースタジオゲストルームスタディブーススカイガーデンスカイダイニング 新耐震基準適合 建物状況調査済 制震構造 大規模修繕工事実施中
アクセス
東京モノレール/りんかい線 『天王洲アイル』駅 徒歩4分
JR山手線/京浜東北線/常磐線/横須賀線/東海道本線/東海道新幹線/京急本線 『品川』駅 徒歩14分
ワールドシティタワーズアクアタワーもご紹介中
ワールドシティタワーズブリーズタワーもご紹介中