購入・売却・リノベ・無料相談はこちら 公式LINEで気軽に相談

中目黒GTハイツ

URLとタイトルをコピーしました!

【仲介手数料相談・掲載写真63枚】目黒区上目黒2-1-2/駐車場有/新耐震基準適合/総戸数88戸/定休日なしで内見予約・無料相談受付中です!
この物件の売却相談はこちら
正規
10,490万円

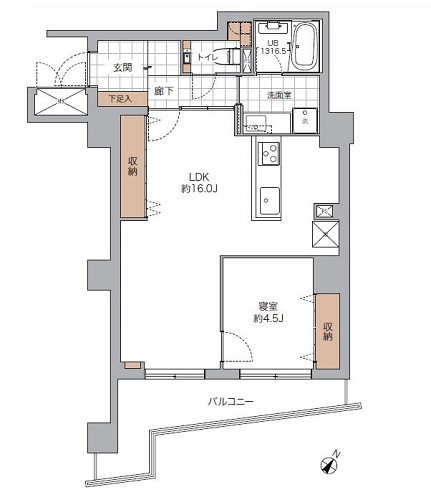
間取り図

URLとタイトルをコピーしました!
10,490万円
54.40㎡
1LDK
なら

仲介手数料 無料!

通常
352万円
当社
0

追加費用も一切なし

マンションは、“どこから買うか”で
支払う費用が変わります

仕組みを詳しく見る

月々の支払い目安を見る

ローンの目安
276,000円/月
管理費
26,240円/月
修繕積立金
22,302円/月
合計
324,542円/月

※ローンの⽬安は、頭⾦ゼロ、借⼊年数35年、都市銀⾏・変動⾦利0.595%(優遇利⽤を想定。) 審査内容により、融資の⼀部または全部をご利⽤いただけない場合がございます。予めご了承ください。

間取り図

54.40㎡ 1LDK

編集部の
部屋レポ

編集部が実際に現地を訪れ、見たもの・感じたことをレポート。
図面だけでは伝わらない"リアルな空気感"をお届けします。

更新日:2022/10/19

更新日:2022/10/19

▲ このお部屋の雰囲気がお好みの方へ

東京グラウンド編集部の住まいレビュー

オシャレで洗練された街並みが幅広い世代に人気の中目黒。今回ご紹介するのは、そんな中目黒のランドマークでもある複合施設内にある好立地マンションです♡「中目黒GT」施設内にはスーパー、図書館、銀行、コンビニなど生活に便利な店舗が多数併設されていて、豊かな生活を送れますよ。25階建てマンションの13階部分に位置する1LDKは、オシャレでスタイリッシュな内装が魅力♡2022年9月にスケルトンからフルリノベーションされたこともあり、隅々までピカピカです。バルコニーからは開放感溢れる都心の眺望をお楽しみいただけますよ♪誰もが羨む駅前のタワーマンションで優雅な毎日をお過ごしください✿ ライター:田嶋【22I27】

この物件の毎月の支払いイメージを
試算してみませんか?

頭金や返済年数などを入力するだけで毎月の合計支払額をシミュレーションできます。

10,490

万円

最初にまとめて支払うお金です。
頭金なしでもローンは組めますので
ご安心ください。

万円

ローンを何年かけて返済するかを
入力します。よくある期間は
35年、30年、20年など。

変動金利で0.3〜0.6%(低金利だが将来的に変動)、固定金利で1.0〜1.5%(返済額がずっと一定で安心)が一般的な目安です。

毎月の支払い予想シミュレーション

ローン支払い目安
276,000円/月
管理費
26,240円/月
修繕積立金
22,302円/月
合計
324,542円/月

※試算結果はあくまで目安であり、実際の借り入れを保証するものではありません。
※物件によっては上記以外の別途費用が発生する場合もございます。詳しくはお問い合わせくださいませ。

住戸概要

価格
10,490万円
所在階
13階
間取り
1LDK
専有面積
54.40㎡
管理費
26,240円/月
修繕積立金
22,302円/月
バルコニー
有(広さ不明)
リノベーションアフターサービス保証付R1住宅適合

建物と街のようす

[中目黒 生活至便で上質な暮らし✦] 中目黒GTハイツ

目黒区上目黒2-1-2MAP

徒歩1分

外観・共用部

その他の共用部・設備写真

物件概要

物件名
中目黒GTハイツ
所在地
目黒区上目黒2-1-2
築年月
平成14年/2002年3月
構造
鉄骨鉄筋コンクリート造
階数
地下3階付 25階建
土地
所有権
総戸数
88戸
分譲会社
上目黒二丁目地区市街地再開発組合
管理会社
株式会社中目黒ジーティー・三井不動産ビルマネジメント株式会社
駐車場
有 (33,000円~55,000円/月)
駐輪場

設備・特徴

エレベーター オートロック 宅配BOX 防犯カメラ 新耐震基準適合 免震構造

アクセス・周辺環境

アクセス

東急東横線/東京メトロ日比谷線 『中目黒』駅 徒歩1分

こんなお部屋に住みたい方へ リフォーム:リノベーション

不動産にまつわるご相談・ご質問・資料請求など
まずはお気軽にお問い合わせくださいませ。