購入・売却・リノベ・無料相談はこちら 公式LINEで気軽に相談

麹町シャインビル

URLとタイトルをコピーしました!

【仲介手数料相談・掲載写真67枚】千代田区麹町4-4-3/新耐震基準適合/総戸数40戸/昭和60年/1985年10月/定休日なしで内見予約・無料相談受付中です!
この物件の売却相談はこちら
正規
8,880万円

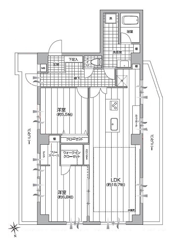
間取り図

URLとタイトルをコピーしました!
8,880万円
78.42㎡
2LDK+WIC
なら

仲介手数料 無料!

通常
299万円
当社
0

追加費用も一切なし

マンションは、“どこから買うか”で
支払う費用が変わります

仕組みを詳しく見る

月々の支払い目安を見る

ローンの目安
234,000円/月
管理費
47,440円/月
修繕積立金
17,250円/月
合計
298,690円/月

※ローンの⽬安は、頭⾦ゼロ、借⼊年数35年、都市銀⾏・変動⾦利0.595%(優遇利⽤を想定。) 審査内容により、融資の⼀部または全部をご利⽤いただけない場合がございます。予めご了承ください。

間取り図

78.42㎡ 2LDK+WIC

編集部の
部屋レポ

編集部が実際に現地を訪れ、見たもの・感じたことをレポート。
図面だけでは伝わらない"リアルな空気感"をお届けします。

更新日:2022/11/08

更新日:2022/11/08

▲ このお部屋の雰囲気がお好みの方へ

東京グラウンド編集部の住まいレビュー

今回は複数路線利用可能でアクセス良好なマンション『麴町シャインビル』の2階に位置する2LDKのお部屋をご紹介しました。窓が多く、風通し・開放感抜群のお部屋です✧キッチンにはたくさんの収納スペースと便利な機能が付いており、毎日快適にお料理できそうですよ。リビングダイニングには床暖房が搭載され、寒い季節も安心です。奥の洋室にはデスク付きのフリースペースを完備しており、書斎やお子様のお部屋にピッタリな空間となっています。床のタイルやアクセントウォールなど、こだわりのあるお部屋です。ぜひ、こちらの利便性抜群でデザイン性の高いお部屋に、足を運んでみてください♡ ライター:播磨【22K04】

この物件の毎月の支払いイメージを
試算してみませんか?

頭金や返済年数などを入力するだけで毎月の合計支払額をシミュレーションできます。

8,880

万円

最初にまとめて支払うお金です。
頭金なしでもローンは組めますので
ご安心ください。

万円

ローンを何年かけて返済するかを
入力します。よくある期間は
35年、30年、20年など。

変動金利で0.3〜0.6%(低金利だが将来的に変動)、固定金利で1.0〜1.5%(返済額がずっと一定で安心)が一般的な目安です。

毎月の支払い予想シミュレーション

ローン支払い目安
234,000円/月
管理費
47,440円/月
修繕積立金
17,250円/月
合計
298,690円/月

※試算結果はあくまで目安であり、実際の借り入れを保証するものではありません。
※物件によっては上記以外の別途費用が発生する場合もございます。詳しくはお問い合わせくださいませ。

住戸概要

価格
8,880万円
所在階
2階
間取り
2LDK+WIC
専有面積
78.42㎡
管理費
47,440円/月
修繕積立金
17,250円/月
バルコニー
有(広さ不明)
リノベーションアフターサービス保証付住宅ローン控除対象

建物と街のようす

[麹町 特別な暮らし] 麹町シャインビル

千代田区麹町4-4-3MAP

徒歩4分

外観・共用部

その他の共用部・設備写真

物件概要

物件名
麹町シャインビル
所在地
千代田区麹町4-4-3
築年月
昭和60年/1985年10月
構造
鉄骨鉄筋コンクリート・鉄筋コンクリート造・鉄骨造
階数
地下1階付 10階建
土地
所有権
総戸数
40戸
分譲会社
工新建物株式会社
管理会社
三生管財株式会社
駐車場
駐輪場
バイク置き場
ペット飼育
不可
事務所使用
可 (管理規約有)
備考・その他
~2023年2月 大規模修繕工事中

設備・特徴

エレベーター 防犯カメラ 新耐震基準適合 大規模修繕履歴有 長期修繕計画有

アクセス・周辺環境

アクセス

東京メトロ有楽町線 『麹町』駅 徒歩4分

JR中央線/総武線/東京メトロ丸ノ内線/南北線 『四ツ谷』駅 徒歩6分

東京メトロ半蔵門線 『半蔵門』駅 徒歩8分

こんなお部屋に住みたい方へ リフォーム:リノベーション

不動産にまつわるご相談・ご質問・資料請求など
まずはお気軽にお問い合わせくださいませ。