購入・売却・リノベ・無料相談はこちら 公式LINEで気軽に相談

アクサスレジデンス外苑

アクサスレジデンス外苑

URLとタイトルをコピーしました!

【仲介手数料相談・掲載写真40枚】新宿区南元町4-57/ペット飼育可/新耐震基準適合/総戸数51戸/定休日なしで内見予約・無料相談受付中です!
この物件の売却相談はこちら
正規
6,500万円

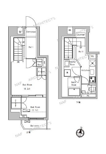
間取り図

URLとタイトルをコピーしました!
6,500万円
45.17㎡
2K
なら

仲介手数料 30% OFF

通常
221万円
66万円お得
当社
155万円

マンションは、“どこから買うか”で
支払う費用が変わります

仕組みを詳しく見る

月々の支払い目安を見る

ローンの目安
171,000円/月
管理費
11,290円/月
修繕積立金
2,710円/月
合計
185,000円/月

※ローンの⽬安は、頭⾦ゼロ、借⼊年数35年、都市銀⾏・変動⾦利0.595%(優遇利⽤を想定。) 審査内容により、融資の⼀部または全部をご利⽤いただけない場合がございます。予めご了承ください。

間取り図

45.17㎡ 2K

編集部の
部屋レポ

編集部が実際に現地を訪れ、見たもの・感じたことをレポート。
図面だけでは伝わらない"リアルな空気感"をお届けします。

更新日:2022/05/29

更新日:2022/05/29

▲ このお部屋の雰囲気がお好みの方へ

東京グラウンド編集部の住まいレビュー

緑あふれるスポーツ・文化・芸術の聖地『国立競技場』駅から11分、『信濃町』駅から6分のマンション。明治神宮外苑周辺エリアには一流の飲食店も数多く、休日に是非散策をしてみてください♪今回ご紹介したお部屋は水回りが下階にまとまり、洋室が上階にあるメゾネットタイプ。無料の使い放題Wi-Fiシステムなので、費用が抑えられるのも嬉しいポイントです。まだまだピカピカのマンションで、都会暮らしを楽しんでくださいね。 ライター:渡邊【22E27】

この物件の毎月の支払いイメージを
試算してみませんか?

頭金や返済年数などを入力するだけで毎月の合計支払額をシミュレーションできます。

6,500

万円

最初にまとめて支払うお金です。
頭金なしでもローンは組めますので
ご安心ください。

万円

ローンを何年かけて返済するかを
入力します。よくある期間は
35年、30年、20年など。

変動金利で0.3〜0.6%(低金利だが将来的に変動)、固定金利で1.0〜1.5%(返済額がずっと一定で安心)が一般的な目安です。

毎月の支払い予想シミュレーション

ローン支払い目安
171,000円/月
管理費
11,290円/月
修繕積立金
2,710円/月
合計
185,000円/月

※試算結果はあくまで目安であり、実際の借り入れを保証するものではありません。
※物件によっては上記以外の別途費用が発生する場合もございます。詳しくはお問い合わせくださいませ。

住戸概要

価格
6,500万円
所在階
3階
間取り
2K
専有面積
45.17㎡
バルコニー
2.61㎡
管理費
11,290円/月
修繕積立金
2,710円/月
備考
Wi-Fi無料使い放題

建物と街のようす

[信濃町 この外観が、自慢♩] アクサスレジデンス外苑

新宿区南元町4-57MAP

徒歩6分

外観・共用部

その他の共用部・設備写真

物件概要

物件名
アクサスレジデンス外苑
所在地
新宿区南元町4-57
築年月
令和1年/2019年3月
構造
鉄筋コンクリート造
階数
地下2階付 5階建
土地
所有権
総戸数
51戸
分譲会社
株式会社アセットリード
管理会社
株式会社アセットコニュニティ
駐車場
駐輪場
有 (室内駐輪場)
バイク置き場
有 (室内バイク置場)
ペット飼育
可 (細則有)
事務所使用
不可
楽器使用
その他 (ピアノ不可)

設備・特徴

エレベーター オートロック 宅配BOX 防犯カメラ 24時間ゴミ出し可24時間セキュリティシステム 新耐震基準適合

アクセス・周辺環境

アクセス

JR総武線 『信濃町』駅 徒歩6分

都営大江戸線 『国立競技場』駅 徒歩11分

こんなお部屋に住みたい方へ リフォーム:リノベーション

不動産にまつわるご相談・ご質問・資料請求など
まずはお気軽にお問い合わせくださいませ。