購入・売却・リノベ・無料相談はこちら 公式LINEで気軽に相談

ベイサイドタワー晴海

ベイサイドタワー晴海

URLとタイトルをコピーしました!

【仲介手数料相談・掲載写真21枚】中央区晴海3-16-1/駐車場有/ペット飼育可/新耐震基準適合/定休日なしで内見予約・無料相談受付中です!
この物件の売却相談はこちら
正規
8,680万円
正規
20,000万円

間取り図

URLとタイトルをコピーしました!
8,680万円
72.40㎡
3LDK
なら

仲介手数料 50% OFF

通常
293万円
146万円お得
当社
147万円

マンションは、“どこから買うか”で
支払う費用が変わります

仕組みを詳しく見る

月々の支払い目安を見る

ローンの目安
228,000円/月
管理費
29,225円/月
修繕積立金
6,740円/月
合計
263,965円/月

※ローンの⽬安は、頭⾦ゼロ、借⼊年数35年、都市銀⾏・変動⾦利0.595%(優遇利⽤を想定。) 審査内容により、融資の⼀部または全部をご利⽤いただけない場合がございます。予めご了承ください。

間取り図

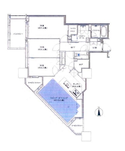
72.40㎡ 3LDK

東京グラウンド編集部の住まいレビュー

都営大江戸線勝どき駅から徒歩10分のところに佇む、タワーマンションのご紹介です♡地震のエネルギーを吸収してくれる免震構造、24時間の有人管理など安心安全の管理体制。コンシェルジュサービスなどホテルライクな共用部も魅力的で、優雅な毎日をイメージできます♪ご紹介のお部屋は南向きで陽当たり良好、収納豊富な3LDK。約11.0帖のリビングダイニングの隣には5.0帖の洋室が2つ併設されているので、仕切りを外してリビングと繋げることでより広々と感じられます。大切なペットと一緒に、ゆとりある暮らしをスタートさせてみませんか♡ ライター:田嶋【22J15】

この物件の毎月の支払いイメージを
試算してみませんか?

頭金や返済年数などを入力するだけで毎月の合計支払額をシミュレーションできます。

8,680

万円

最初にまとめて支払うお金です。
頭金なしでもローンは組めますので
ご安心ください。

万円

ローンを何年かけて返済するかを
入力します。よくある期間は
35年、30年、20年など。

変動金利で0.3〜0.6%(低金利だが将来的に変動)、固定金利で1.0〜1.5%(返済額がずっと一定で安心)が一般的な目安です。

毎月の支払い予想シミュレーション

ローン支払い目安
228,000円/月
管理費
29,225円/月
修繕積立金
6,740円/月
合計
263,965円/月

※試算結果はあくまで目安であり、実際の借り入れを保証するものではありません。
※物件によっては上記以外の別途費用が発生する場合もございます。詳しくはお問い合わせくださいませ。

住戸概要

価格
8,680万円
所在階
8階
間取り
3LDK
専有面積
72.40㎡
バルコニー
11.28㎡
管理費
29,225円/月
修繕積立金
6,740円/月
住宅ローン控除対象

間取り図

URLとタイトルをコピーしました!
20,000万円
76.13㎡
3LDK
なら

仲介手数料 30% OFF

通常
666万円
199万円お得
当社
467万円

マンションは、“どこから買うか”で
支払う費用が変わります

仕組みを詳しく見る

月々の支払い目安を見る

ローンの目安
527,000円/月
管理費
30,665円/月
修繕積立金
7,080円/月
合計
564,745円/月

※ローンの⽬安は、頭⾦ゼロ、借⼊年数35年、都市銀⾏・変動⾦利0.595%(優遇利⽤を想定。) 審査内容により、融資の⼀部または全部をご利⽤いただけない場合がございます。予めご了承ください。

間取り図

76.13㎡ 3LDK

東京グラウンド編集部の住まいレビュー

ビル、水、木といった異色の組み合わせで、独特のコントラストを織り成す『晴海』エリアに佇むタワーマンション。都会的でありながらも、自然の癒しを感じられる素敵な住環境です☆商業施設が充実しているので、お買い物面の利便性が見て取れました。お目当ての『ベイサイドタワー晴海』は、遠くから見ても存在感のある美しい外観が魅力の1つでもあります。共用部は洗練された雰囲気が漂っており、通る度にモチベーションが上がるかもしれません♪最上階部分に位置するファミリータイプの3LDKで、優雅に毎日を謳歌してみませんか? ライター:小笠原【22F05】

この物件の毎月の支払いイメージを
試算してみませんか?

頭金や返済年数などを入力するだけで毎月の合計支払額をシミュレーションできます。

20,000

万円

最初にまとめて支払うお金です。
頭金なしでもローンは組めますので
ご安心ください。

万円

ローンを何年かけて返済するかを
入力します。よくある期間は
35年、30年、20年など。

変動金利で0.3〜0.6%(低金利だが将来的に変動)、固定金利で1.0〜1.5%(返済額がずっと一定で安心)が一般的な目安です。

毎月の支払い予想シミュレーション

ローン支払い目安
527,000円/月
管理費
30,665円/月
修繕積立金
7,080円/月
合計
564,745円/月

※試算結果はあくまで目安であり、実際の借り入れを保証するものではありません。
※物件によっては上記以外の別途費用が発生する場合もございます。詳しくはお問い合わせくださいませ。

住戸概要

価格
20,000万円
所在階
33階
間取り
3LDK
専有面積
76.13㎡
バルコニー
7.35㎡
管理費
30,665円/月
修繕積立金
7,080円/月
居住中住宅ローン控除対象

建物と街のようす

[勝どき Fly to a New World] ベイサイドタワー晴海

中央区晴海3-16-1MAP

徒歩10分

外観・共用部

その他の共用部・設備写真

物件概要

物件名
ベイサイドタワー晴海
所在地
中央区晴海3-16-1
築年月
平成27年/2015年10月
構造
鉄筋コンクリート造
階数
地下2階付 33階建
土地
所有権
総戸数
352戸
分譲会社
住友不動産販売株式会社
管理会社
住友不動産建物サービス株式会社
駐車場
有 (27,000円~42,000円/月)
駐輪場
有 (200円~1,000円/月)
バイク置き場
有 (5,000円~7,000円 ミニバイク置場:3,000円/月)
ペット飼育
可 (制限・細則有)
備考・その他
トランクルーム:地下1階・全住戸分設置(月額使用料:500円)

設備・特徴

エレベーター オートロック トランクルーム 防犯カメラ コンシェルジュサービス24時間有人管理24時間ゴミ出し可各フロアゴミ置場カーシェアリングサービスシャトルバス(新橋駅迄) 新耐震基準適合 免震構造

アクセス・周辺環境

アクセス

都営大江戸線 『勝どき』駅 徒歩10分

こんなお部屋に住みたい方へ リフォーム:リノベーション

不動産にまつわるご相談・ご質問・資料請求など
まずはお気軽にお問い合わせくださいませ。