購入・売却・リノベ・無料相談はこちら 公式LINEで気軽に相談

ライフェール新宿御苑ノースサイド

ライフェール新宿御苑ノースサイド

URLとタイトルをコピーしました!

【仲介手数料相談・掲載写真146枚】新宿区大京町22-3/仲介手数料無料の中古マンション「ライフェール新宿御苑ノースサイド」の物件紹介。 丸ノ内線 『四谷三丁目』駅 徒歩6分 丸ノ内線 『新宿御苑前』駅 徒歩6分 ハイアーグラウンドでは同じエリアで他にも多数ご紹介中♪♪/定休日なしで内見予約・無料相談受付中です!
この物件の売却相談はこちら
正規
4,780万円
成約済み
販売終了物件
成約済み
販売終了物件

間取り図

URLとタイトルをコピーしました!
  • NEW

4,780万円
43.91㎡
1LDK
なら

仲介手数料 30% OFF

通常
164万円
49万円お得
当社
115万円

マンションは、“どこから買うか”で
支払う費用が変わります

仕組みを詳しく見る

月々の支払い目安を見る

ローンの目安
126,000円/月
管理費
12,520円/月
修繕積立金
11,900円/月
合計
150,420円/月

※ローンの⽬安は、頭⾦ゼロ、借⼊年数35年、都市銀⾏・変動⾦利0.595%(優遇利⽤を想定。) 審査内容により、融資の⼀部または全部をご利⽤いただけない場合がございます。予めご了承ください。

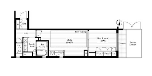
間取り図

43.91㎡ 1LDK

編集部の
部屋レポ

編集部が実際に現地を訪れ、見たもの・感じたことをレポート。
図面だけでは伝わらない"リアルな空気感"をお届けします。

更新日:2022/09/27

更新日:2022/09/27

▲ このお部屋の雰囲気がお好みの方へ

東京グラウンド編集部の住まいレビュー

新宿御苑前駅は、大きなビルが立ち並ぶオフィス街。新宿駅まで歩くこともできるので、駅周辺の百貨店で気軽にショッピングをお楽しみいただけますよ♥『ライフェール新宿御苑ノースサイド』は大通りに面していますが、セキュリティ面がしっかりしているので安心して暮らすことができますね。お部屋のオススメポイントは、開放感のある洋室です。保温効果に優れた2重サッシが用いられたお部屋なら、寒い冬でも快適ですね。美しい緑を眺められるお部屋は、毎日の暮らしを特別なものに変えてくれるはず。ぜひ一度、ご覧ください♬ ライター:田中【22G09】

この物件の毎月の支払いイメージを
試算してみませんか?

頭金や返済年数などを入力するだけで毎月の合計支払額をシミュレーションできます。

4,780

万円

最初にまとめて支払うお金です。
頭金なしでもローンは組めますので
ご安心ください。

万円

ローンを何年かけて返済するかを
入力します。よくある期間は
35年、30年、20年など。

変動金利で0.3〜0.6%(低金利だが将来的に変動)、固定金利で1.0〜1.5%(返済額がずっと一定で安心)が一般的な目安です。

毎月の支払い予想シミュレーション

ローン支払い目安
126,000円/月
管理費
12,520円/月
修繕積立金
11,900円/月
合計
150,420円/月

※試算結果はあくまで目安であり、実際の借り入れを保証するものではありません。
※物件によっては上記以外の別途費用が発生する場合もございます。詳しくはお問い合わせくださいませ。

住戸概要

価格
4,780万円
所在階
1階
間取り
1LDK
専有面積
43.91㎡
管理費
12,520円/月
修繕積立金
11,900円/月
テラス
3.47㎡
専用庭
6.25㎡

こちらのお部屋は販売終了いたしました

編集部の
部屋レポ

過去に販売したお部屋の一部をご紹介。
住まい探しやリノベーションのヒントにご覧ください。

▲ このお部屋の雰囲気がお好みの方へ

東京グラウンド編集部の住まいレビュー

『新宿御苑前』駅は、新宿駅まで歩いていくことができるアクセス良好な街。百貨店も近いので、お買い物がお好きな方にもピッタリな場所と言えますね♡『ライフェール新宿御苑ノースサイド』は、高級感ある共用部が印象的でした。歩道に面していますが、セキュリティー面がしっかりしているので安心してお過ごしいただけますよ。お部屋のおすすめポイントは、広々としたサービスルーム。アイディア次第でいろいろな使い方ができそうな空間です。ぜひ一度、ご覧ください♬ ライター:田中【22C04】

こちらのお部屋は販売終了いたしました

編集部の
部屋レポ

過去に販売したお部屋の一部をご紹介。
住まい探しやリノベーションのヒントにご覧ください。

▲ このお部屋の雰囲気がお好みの方へ

建物と街のようす

[四谷三丁目 自然を身近にリフレッシュ🍃] ライフェール新宿御苑ノースサイド

新宿区大京町22-3MAP

徒歩6分

外観・共用部

その他の共用部・設備写真

物件概要

物件名
ライフェール新宿御苑ノースサイド
所在地
新宿区大京町22-3
築年月
平成15年/2003年3月
構造
鉄骨鉄筋・鉄筋コンクリート造
階数
13階建
土地
所有権
総戸数
36戸
分譲会社
株式会社ライフアップ建設
管理会社
株式会社レーベンコミュニティ
駐車場
駐輪場
有 (200円/月)
バイク置き場
有 (2,000円/月)
ペット飼育
可 (飼育細則有)

設備・特徴

エレベーター オートロック 宅配BOX 防犯カメラ 新耐震基準適合

アクセス・周辺環境

アクセス

東京メトロ丸ノ内線 『四谷三丁目』駅 徒歩6分

東京メトロ丸ノ内線 『新宿御苑前』駅 徒歩7分

JR総武線 『千駄ヶ谷』駅 徒歩11分

都営大江戸線 『国立競技場』駅 徒歩11分

JR総武線 『信濃町』駅 徒歩14分

こんなお部屋に住みたい方へ リフォーム:リノベーション

不動産にまつわるご相談・ご質問・資料請求など
まずはお気軽にお問い合わせくださいませ。