間取り図
なら
仲介手数料 無料!
追加費用も一切なし
マンションは、“どこから買うか”で
支払う費用が変わります
仕組みを詳しく見る
月々の支払い目安を見る
※ローンの⽬安は、頭⾦ゼロ、借⼊年数35年、都市銀⾏・変動⾦利0.595%(優遇利⽤を想定。) 審査内容により、融資の⼀部または全部をご利⽤いただけない場合がございます。予めご了承ください。
間取り図
編集部が実際に現地を訪れ、見たもの・感じたことをレポート。
図面だけでは伝わらない"リアルな空気感"をお届けします。
更新日:2022/10/15
東京グラウンド編集部の住まいレビュー
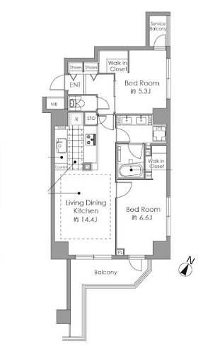
都心部に住みたい、けど騒がしいのは嫌…という方にはまさに穴場と言える神泉駅♡渋谷駅から電車で1分ほどの好立地です。『パルテール目黒青葉台』から渋谷駅までは徒歩12分なので、電車やバスを使わず歩いてみるのも良い運動習慣になりそうですね。ご紹介したお部屋は3階部分に位置している2LDKの角部屋です。各所にチャームポイントが散りばめられていますが、最も印象的なのはキッチンやサニタリールームのデザイン性の高さ。ダークトーンのデザインタイルがとってもスタイリッシュでした✦ガスオーブンレンジやリラクゼーションタワーシャワーなど、高機能な設備も必見です。利便性とデザイン性を兼ね備えた唯一無二のお部屋となっています。是非現地でご覧になってみてください♡ ライター:加藤【22J13】
この物件の毎月の支払いイメージを
試算してみませんか?
頭金や返済年数などを入力するだけで毎月の合計支払額をシミュレーションできます。
9,780
毎月の支払い予想シミュレーション
※試算結果はあくまで目安であり、実際の借り入れを保証するものではありません。
※物件によっては上記以外の別途費用が発生する場合もございます。詳しくはお問い合わせくださいませ。
住戸概要
間取り図
なら
仲介手数料 30% OFF
マンションは、“どこから買うか”で
支払う費用が変わります
仕組みを詳しく見る
月々の支払い目安を見る
※ローンの⽬安は、頭⾦ゼロ、借⼊年数35年、都市銀⾏・変動⾦利0.595%(優遇利⽤を想定。) 審査内容により、融資の⼀部または全部をご利⽤いただけない場合がございます。予めご了承ください。
間取り図
編集部が実際に現地を訪れ、見たもの・感じたことをレポート。
図面だけでは伝わらない"リアルな空気感"をお届けします。
更新日:2022/10/15
東京グラウンド編集部の住まいレビュー
ご紹介するのはどこに行くにもアクセスの良いターミナル駅、渋谷が徒歩圏内の好立地マンション。重厚感のあるタイル張りの13階建てマンションは、平成築でまだまだ新しくスタイリッシュな外観です♡ホテルライクな共用部を抜けお部屋へ進むと、南東・北東向きの2面バルコニーが嬉しい、2LDKの角部屋があります。約6.6帖の洋室にはウォークインクローゼットを完備していて収納力も抜群◎季節もののコートや丈の長いワンピースなども綺麗に保管しておけます♡さらに約10.0帖のリビングには床暖房を搭載しているので、1年を通して快適にお過ごしいただけますよ♪ ライター:田嶋【22H26】
この物件の毎月の支払いイメージを
試算してみませんか?
頭金や返済年数などを入力するだけで毎月の合計支払額をシミュレーションできます。
7,880
毎月の支払い予想シミュレーション
※試算結果はあくまで目安であり、実際の借り入れを保証するものではありません。
※物件によっては上記以外の別途費用が発生する場合もございます。詳しくはお問い合わせくださいませ。
住戸概要
こちらのお部屋は販売終了いたしました
過去に販売したお部屋の一部をご紹介。
住まい探しやリノベーションのヒントにご覧ください。
東京グラウンド編集部の住まいレビュー
ビッグターミナル『渋谷』駅も徒歩圏内の好アクセスマンション。新規リノベーションされた居室内には、サービスルーム、ウォークインクローゼット、床暖房、食洗機など便利な機能が満載♡大切なペットを含め、家族水入らず充実したおうち時間を過ごせること間違いなし♪メインとなるリビングダイニングキッチンは天井が高く、ダウンライトがオシャレな雰囲気を演出しています。陽当たり&風通しの良い広々空間で、1年を通してゆったりとお過ごしください♫ ライター:田島【21L18】
[渋谷 新しい発見がある街] パルテール目黒青葉台
駅
徒歩4分
その他の共用部・設備写真
物件概要
設備・特徴
エレベーター オートロック 宅配BOX トランクルーム 防犯カメラ 24時間ゴミ出し可 新耐震基準適合