購入・売却・リノベ・無料相談はこちら 公式LINEで気軽に相談

シティタワー高輪

URLとタイトルをコピーしました!

【仲介手数料相談・掲載写真96枚】港区高輪1-23-23/シティタワー高輪(港区高輪1-23-23/白金高輪駅)を写真・動画多数掲載で詳しくご紹介中。仲介手数料無料or割引で購入・賃貸ならハイアーグラウンドへ!年中無休・ご内見いつでも可能♪賃貸管理もお任せを。お気軽にお問い合わせ下さい!/定休日なしで内見予約・無料相談受付中です!
この物件の売却相談はこちら
正規
10,680万円
成約済み
販売終了物件
成約済み
販売終了物件

間取り図

URLとタイトルをコピーしました!
10,680万円
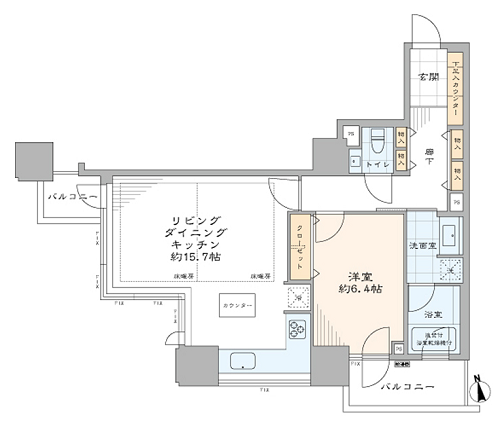
57.38㎡
1LDK
なら

仲介手数料 無料!

通常
359万円
当社
0

追加費用も一切なし

マンションは、“どこから買うか”で
支払う費用が変わります

仕組みを詳しく見る

月々の支払い目安を見る

ローンの目安
281,000円/月
管理費
15,729円/月
修繕積立金
14,670円/月
合計
311,399円/月

※ローンの⽬安は、頭⾦ゼロ、借⼊年数35年、都市銀⾏・変動⾦利0.595%(優遇利⽤を想定。) 審査内容により、融資の⼀部または全部をご利⽤いただけない場合がございます。予めご了承ください。

間取り図

57.38㎡ 1LDK

編集部の
部屋レポ

編集部が実際に現地を訪れ、見たもの・感じたことをレポート。
図面だけでは伝わらない"リアルな空気感"をお届けします。

更新日:2022/10/15

更新日:2022/10/15

▲ このお部屋の雰囲気がお好みの方へ

東京グラウンド編集部の住まいレビュー

高輪エリアに佇む『シティタワー高輪』をご紹介しました。住友不動産が贈る「シティタワーシリーズ」は、憧れの代名詞とも言えるブランドマンション♡その名の通り、悠然と佇んでいますね。白金高輪と言えば高級住宅街というイメージがありますが、実際にはスーパーやドラッグストアなどの店舗もあり生活環境が整っています。今回は1LDK・ペット飼育可のお部屋をご紹介しました。圧巻の開放感、南西向きで陽当り良好☼自然と気持ちも明るくなれるようなお部屋です。キッチン周りや収納など機能性も良いので、日々を快適にお過ごしいただけるのではないでしょうか。是非一度、現地へ足を運んでみてください☆
ライター:加藤【22G18】

この物件の毎月の支払いイメージを
試算してみませんか?

頭金や返済年数などを入力するだけで毎月の合計支払額をシミュレーションできます。

10,680

万円

最初にまとめて支払うお金です。
頭金なしでもローンは組めますので
ご安心ください。

万円

ローンを何年かけて返済するかを
入力します。よくある期間は
35年、30年、20年など。

変動金利で0.3〜0.6%(低金利だが将来的に変動)、固定金利で1.0〜1.5%(返済額がずっと一定で安心)が一般的な目安です。

毎月の支払い予想シミュレーション

ローン支払い目安
281,000円/月
管理費
15,729円/月
修繕積立金
14,670円/月
合計
311,399円/月

※試算結果はあくまで目安であり、実際の借り入れを保証するものではありません。
※物件によっては上記以外の別途費用が発生する場合もございます。詳しくはお問い合わせくださいませ。

住戸概要

価格
10,680万円
所在階
13階
間取り
1LDK
専有面積
57.38㎡
バルコニー
7.85㎡
管理費
15,729円/月
修繕積立金
14,670円/月
リノベーションアフターサービス保証付住宅ローン控除対象 既存住宅瑕疵保険付保予定

こちらのお部屋は販売終了いたしました

編集部の
部屋レポ

過去に販売したお部屋の一部をご紹介。
住まい探しやリノベーションのヒントにご覧ください。

▲ このお部屋の雰囲気がお好みの方へ

こちらのお部屋は販売終了いたしました

編集部の
部屋レポ

過去に販売したお部屋の一部をご紹介。
住まい探しやリノベーションのヒントにご覧ください。

▲ このお部屋の雰囲気がお好みの方へ

建物と街のようす

[白金高輪 私のおうちは高輪のタワマン♡] シティタワー高輪

港区高輪1-23-23MAP

徒歩6分

外観・共用部

その他の共用部・設備写真

物件概要

物件名
シティタワー高輪
所在地
港区高輪1-23-23
築年月
平成16年/2004年1月
構造
鉄筋コンクリート造
階数
地下2階付 35階建
土地
所有権
総戸数
365戸
分譲会社
住友不動産株式会社
管理会社
住友不動産建物サービス株式会社
駐車場
有 (38,000円~51,000円/月)
駐輪場
有 (500円/月)
バイク置き場
有 (1,000円~2,500円/月)
ペット飼育
可 (1匹迄、体高50㎝・体重10㎏以内迄 ※規約有)
事務所使用
不可
備考・その他
トランクルーム使用料:2,000円~3,000円/月


<20F>
スカイラウンジ、ゲストルーム

<2F>
カンファレンスルーム、ジム等

設備・特徴

エレベーター オートロック 宅配BOX トランクルーム 防犯カメラ コンシェルジュサービス24時間有人管理ウエルネススタジオシアタースタジオ 新耐震基準適合 建物状況調査済 制震構造

アクセス・周辺環境

アクセス

東京メトロ南北線/都営三田線 『白金高輪』駅 徒歩6分

都営浅草線 『高輪台』駅 徒歩8分

東京メトロ南北線/都営三田線 『白金台』駅 徒歩10分

都営浅草線/京急本線 『泉岳寺』駅 徒歩12分

こんなお部屋に住みたい方へ リフォーム:リノベーション

不動産にまつわるご相談・ご質問・資料請求など
まずはお気軽にお問い合わせくださいませ。