購入・売却・リノベ・無料相談はこちら 公式LINEで気軽に相談

東京ツインパークス ライトウィング

東京ツインパークス ライトウィング

URLとタイトルをコピーしました!

【仲介手数料相談】港区東新橋1-10-2/東京ツインパークス ライトウィング(港区東新橋1‐10‐2/汐留駅)を写真・動画多数掲載で詳しくご紹介中。仲介手数料無料or割引で購入・賃貸ならハイアーグラウンドへ!年中無休・ご内見いつでも可能♪賃貸管理もお任せを。お気軽にお問い合わせ下さい!/定休日なしで内見予約・無料相談受付中です!
この物件の売却相談はこちら
正規
15,800万円
成約済み
販売終了物件

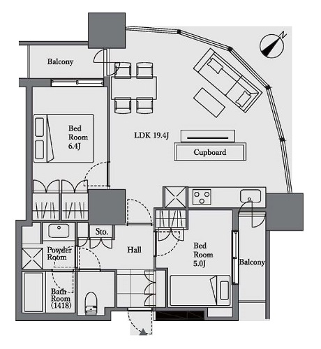
間取り図

URLとタイトルをコピーしました!
15,800万円
69.45㎡
2LDK
なら

仲介手数料 無料!

通常
528万円
当社
0

追加費用も一切なし

マンションは、“どこから買うか”で
支払う費用が変わります

仕組みを詳しく見る

月々の支払い目安を見る

ローンの目安
416,000円/月
管理費
23,100円/月
修繕積立金
21,460円/月
合計
460,560円/月

※ローンの⽬安は、頭⾦ゼロ、借⼊年数35年、都市銀⾏・変動⾦利0.595%(優遇利⽤を想定。) 審査内容により、融資の⼀部または全部をご利⽤いただけない場合がございます。予めご了承ください。

間取り図

69.45㎡ 2LDK

この物件の毎月の支払いイメージを
試算してみませんか?

頭金や返済年数などを入力するだけで毎月の合計支払額をシミュレーションできます。

15,800

万円

最初にまとめて支払うお金です。
頭金なしでもローンは組めますので
ご安心ください。

万円

ローンを何年かけて返済するかを
入力します。よくある期間は
35年、30年、20年など。

変動金利で0.3〜0.6%(低金利だが将来的に変動)、固定金利で1.0〜1.5%(返済額がずっと一定で安心)が一般的な目安です。

毎月の支払い予想シミュレーション

ローン支払い目安
416,000円/月
管理費
23,100円/月
修繕積立金
21,460円/月
合計
460,560円/月

※試算結果はあくまで目安であり、実際の借り入れを保証するものではありません。
※物件によっては上記以外の別途費用が発生する場合もございます。詳しくはお問い合わせくださいませ。

住戸概要

価格
15,800万円
所在階
17階
間取り
2LDK
専有面積
69.45㎡
バルコニー
6.73㎡
管理費
23,100円/月
修繕積立金
21,460円/月
インターネット接続費
1,595円/月
給湯暖房基本料
1,900円/月
ヒーツ修繕積立金
2,920円/月
リノベーション住宅ローン控除対象

こちらのお部屋は販売終了いたしました

編集部の
部屋レポ

過去に販売したお部屋の一部をご紹介。
住まい探しやリノベーションのヒントにご覧ください。

▲ このお部屋の雰囲気がお好みの方へ

建物と街のようす

[汐留 みんなのランドマークタワー] 東京ツインパークス ライトウィング

港区東新橋1-10-2MAP

徒歩2分

外観・共用部

その他の共用部・設備写真

物件概要

物件名
東京ツインパークス ライトウィング
所在地
港区東新橋1-10-2
築年月
平成14年/2002年9月
構造
鉄筋コンクリート造
階数
地下2階付 47階建
総戸数
1000戸
分譲会社
三井不動産株式会社・三菱地所株式会社 他
管理会社
三井不動産レジデンシャルサービス株式会社
駐車場
有 (40,000円~70,000円/月)
駐輪場
バイク置き場
ペット飼育
可 (細則有)
事務所使用
可 (条件有)
備考・その他
インターネット接続料:1,595円/月
給湯暖房基本料:1,900円/月
ヒーツ修繕積立金:2,920円/月

フロントコンシェルジュサービス
・クリーニング受付
・宅配便取次
・新聞配達
・ワインセラーサービス
・鍵預かりサービス
・駐車車両サービス
・TVモニター機能
・電子回覧板
・共用施設予約機能
・宅配ボックス通知機能

設備・特徴

エレベーター オートロック 宅配BOX トランクルーム 防犯カメラ 24時間有人管理(夜間管理員駐在)フロントコンシェルジュサービスフィットネスジム パーティールームラウンジ 新耐震基準適合 オール電化

アクセス・周辺環境

アクセス

都営大江戸線/ゆりかもめ 『汐留』駅 徒歩2分

JR山手線/京浜東北線/東京モノレール 『浜松町』駅 徒歩6分

JR山手線/京浜東北線/東海道線/横須賀線/東京メトロ銀座線/都営浅草線/ゆりかもめ 『新橋』駅 徒歩8分

東京ツインパークス レフトウィングもご紹介中

こんなお部屋に住みたい方へ リフォーム:リノベーション

不動産にまつわるご相談・ご質問・資料請求など
まずはお気軽にお問い合わせくださいませ。