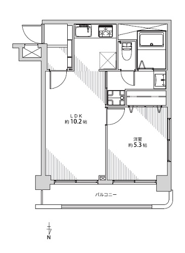
間取り図
なら
仲介手数料 無料!
追加費用も一切なし
マンションは、“どこから買うか”で
支払う費用が変わります
仕組みを詳しく見る
月々の支払い目安を見る
※ローンの⽬安は、頭⾦ゼロ、借⼊年数35年、都市銀⾏・変動⾦利0.595%(優遇利⽤を想定。) 審査内容により、融資の⼀部または全部をご利⽤いただけない場合がございます。予めご了承ください。
間取り図
編集部が実際に現地を訪れ、見たもの・感じたことをレポート。
図面だけでは伝わらない"リアルな空気感"をお届けします。
更新日:2022/09/16
東京グラウンド編集部の住まいレビュー
落ち着いた雰囲気の街並みが魅力の大田区北千束アドレス。環七通り沿いに佇む5階建てマンションはエレベーターではなく、階段での上り下りとなります。2022年3月下旬にリノベーションされたばかりの居室内は、北西角部屋につき風通し良好。約10.2帖のリビングダイニングキッチンは、木の温もり溢れる柔らかな雰囲気で奥行きもあります♪生活環境の整ったお部屋で快適便利な暮らしをスタートさせてみませんか♡ ライター:田島【22D24】
この物件の毎月の支払いイメージを
試算してみませんか?
頭金や返済年数などを入力するだけで毎月の合計支払額をシミュレーションできます。
2,190
毎月の支払い予想シミュレーション
※試算結果はあくまで目安であり、実際の借り入れを保証するものではありません。
※物件によっては上記以外の別途費用が発生する場合もございます。詳しくはお問い合わせくださいませ。
住戸概要
[洗足 生活便利な環境で] ワコー洗足マンション
駅
徒歩5分
その他の共用部・設備写真
物件概要
設備・特徴
大規模修繕履歴有