間取り図
なら
仲介手数料 無料!
追加費用も一切なし
マンションは、“どこから買うか”で
支払う費用が変わります
仕組みを詳しく見る
月々の支払い目安を見る
※ローンの⽬安は、頭⾦ゼロ、借⼊年数35年、都市銀⾏・変動⾦利0.595%(優遇利⽤を想定。) 審査内容により、融資の⼀部または全部をご利⽤いただけない場合がございます。予めご了承ください。
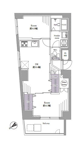
間取り図
編集部が実際に現地を訪れ、見たもの・感じたことをレポート。
図面だけでは伝わらない"リアルな空気感"をお届けします。
更新日:2022/09/28
更新日:2022/09/28








東京グラウンド編集部の住まいレビュー
大崎広小路駅から徒歩3分、五反田駅や大崎駅も徒歩圏内のアクセス抜群なマンションをご紹介しました♪行き先や目的に合わせて複数の路線を使い分けできるのはとっても便利ですね。五反田駅周辺は飲食店が多く賑やかですが、『五反田ロイヤルハイツ』の周辺まで来ると雰囲気が変わり、騒がしさはありません。今回ご紹介したお部屋は3階に位置する2DKの角部屋です。ナチュラルな色合いの木目調で統一され、とても優しい雰囲気で素敵です✿ダイニングキッチンと洋室はスライド扉で仕切られているので、1LDKのようにお使いいただくこともできますよ◎ご興味がある方は是非現地に足を運んでみてくださいね。 ライター:加藤【22I26】
この物件の毎月の支払いイメージを
試算してみませんか?
頭金や返済年数などを入力するだけで毎月の合計支払額をシミュレーションできます。
3,899
毎月の支払い予想シミュレーション
※試算結果はあくまで目安であり、実際の借り入れを保証するものではありません。
※物件によっては上記以外の別途費用が発生する場合もございます。詳しくはお問い合わせくださいませ。
住戸概要
こちらのお部屋は販売終了いたしました
過去に販売したお部屋の一部をご紹介。
住まい探しやリノベーションのヒントにご覧ください。




東京グラウンド編集部の住まいレビュー
東急池上線『大崎広小路』駅より徒歩3分の駅近マンション『五反田ロイヤルハイツ』。『五反田』駅や『大崎』駅も徒歩圏内なので、お出かけする際も便利ですよ◎『五反田ロイヤルハイツ』は昭和築を感じさせない外観で、共用部も清掃が行き届いています。今回ご紹介したお部屋は、リノベーション済みの3LDK。約70㎡の広さがあるので、広々としていて開放的ですよ◎ペットと一緒に暮らせるのも嬉しいポイントですね♪ ライター:川原【21K18】
こちらのお部屋は販売終了いたしました
過去に販売したお部屋の一部をご紹介。
住まい探しやリノベーションのヒントにご覧ください。




[大崎広小路 寄り道を楽しむ日々] 五反田ロイヤルハイツ
駅
徒歩3分
その他の共用部・設備写真
物件概要
設備・特徴
エレベーター 防犯カメラ 24時間ゴミ出し可
アクセス
東急池上線 『大崎広小路』駅 徒歩3分
JR山手線/埼京線/湘南新宿ライン/りんかい線 『大崎』駅 徒歩5分
JR山手線/東急池上線/都営浅草線 『五反田』駅 徒歩7分
こちらの物件は弊社運営の別サイトでもご紹介中♪